圖紙在生產加工的重要作用勿庸置疑的,沒有圖紙,生產加工猶如盲人摸象—瞎抓,根本沒有好結果的。在石材產品的加工中要用到各種的圖紙,不同的圖紙作用都不一樣,各有其功能。在這些圖紙中,立面圖與平面布置圖都很平常,但立面圖與平面布置圖一樣卻在生產加工中少不了。平面布置圖反映的是平面上的產品關系,而立面圖反映的是立面上的產品關系,立面圖上有了石材產品,建筑物空間裝飾效果更好,立體感更加強烈。
所謂立面圖,在對建筑物外墻各個立面進行投影所得到的投影圖及與房屋內裝立面平行的投影面上所作房屋的正投影圖,稱為建筑立面圖,簡稱立面圖。從建筑立面圖中可以看出:
(1) 建筑物的外觀特征及凹凸變化
建筑的立體感是通過立面方向展示出來的,平面方向僅展示的是平面效果,只有立面圖方反映出建筑物的外觀特征及凹凸變化,展示建筑物的立體空間感。
(2)建筑物各主要部分的標高及高度關系
立面圖反映建筑物各主要部分的標高和高度關系。通過立面圖,知道各標高位置是否為石材產品,石材產品安裝的數量。
(3)建筑立面圖所選用的材料、產品類型和施工要求等
建筑立面圖反映了建筑物垂直方向的各個部分的關系,通過建筑立面圖察看立面上的裝飾材料。
如圖1為某建筑外墻立面圖,圖2為某建筑內裝立面圖。圖1垂直方向上標識著許多的數據,這些數據反映了各層的高度;圖1上畫著陽臺、窗戶、門拱、女兒墻、屋頂等結構,反映了各結構之間的關系。圖2為一簡單的墻面立面展開圖,被劃分了許多小塊,并且有編號,尺寸,生產加工的時候依據這個圖可以知道各件產品之間的關系。

圖1
立面(展開)圖:生產加工單上必備之圖,體現裝飾面上各個部件之間的關系,尺寸關系、各個部件加工成什么形狀,磨什么類型的邊,反映出了裝飾面的整體效果。

圖2
建筑立面圖的識圖:
圖3是一幅較為復雜的房屋立面圖。
立面圖看圖時先看立面圖的名稱,這是立面圖的身份。圖3立面圖名稱為“D1-a戶型北立面10~1軸石材立面排版圖”。
二看立面圖的劃分軸:圖3立面圖劃分了10個軸,1~10軸,也就是說在立面上劃分了10個小區域。
三看立面圖的空間結構:從立面圖底部往上看大概的輪廓,再從左向右或從右向左看。通常情況下從1軸往10軸方向看,①軸為墻面及護墻板;②軸可能是個卷閘門,有個大型門套加工;④軸處有樓梯柱和樓梯;⑤軸處是大門入口,有石材門套;⑥軸處有樓梯柱和樓梯,與④軸處相對應;⑨軸處是落地窗,有石材窗套;10處是墻面與護墻板。
四逐漸向上看,在⑤軸處門套之上有線條組合而成的壓頂石;二層與一層之間交接線處沿墻面走向有圈石材線條。
五看二層立面結構,窗套、墻柱,各種石材裝飾塊、線條都反映在立面圖上。
六看屋檐結構:屋檐處有許多石材造型裝飾塊。
七看屋頂結構:屋頂上有條石材造型裝飾柱和四個通風出口。
八認真看立面上那些部分為石材,并對照立面圖上附注處石材的圖例,看是什么石材。

圖3
石材產品加工中常涉及到立面圖的類型:
(1)墻面立面圖
依建筑的功能不同,墻面立面圖有客廳墻面立面圖、背景墻墻面立面圖、衛生間墻面立面圖、外墻立面圖、大堂墻面立面圖等。不管什么類型的立面圖,其表示方法基本上差不多的。
圖4為石材產品加工中很常見的立面圖。立面圖上反映了石材產品,磨邊邊型、尺寸、立面結構、磨邊圖例、產品編號等內容,有些立面圖上還有箱號。

圖4
(2)方柱立面圖
表示方柱立面圖。方柱立面圖通常由柱座、柱身、柱腰、柱頸、柱頭構成。方柱立面圖通常畫成展開圖的形式,圖6為方柱立面展開圖, 上面標示了各層的長、高尺寸、磨邊符號。

圖5 方柱景圖

圖6方柱立面展開圖
(3)圓柱立面圖
表示圓柱立面圖。圓柱立面圖通常由柱座、柱身、柱腰、柱頸、柱頭構成。圓柱立面圖通常畫成展開圖的形式,與方柱立面圖基本相同。

圖7圓柱立面實景圖

圖8圓柱立面構成圖

圖9 圓柱展開圖
(4)方柱+圓柱立面圖
由方柱和圓柱立面圖共同組成的立面圖。立面展開圖與方柱、圓柱立面展開圖基本相同。

圖10方柱+圓柱立面實景圖
(5)圓弧墻面立面展開圖
圓弧墻面立面展開圖與直面墻面立面展開圖相同,表達方式也一致。

(6)洗手臺立面圖
洗手臺不管是賓館、酒店、公共場所,還是家庭住宅處處都有,石材產品中也常做此類產品。在石材產品工中如果只有洗手臺平面圖,沒有洗手臺立面圖是不可能加工出符合要求的產品的。圖14為洗手臺立面板。

圖13 洗手臺平面圖

圖14洗手臺立面圖
(7)廚柜立面圖
廚柜家庭住宅里不可以少的產品,廚柜立面圖反映了廚柜的結構,是廚柜加工中不可少的圖紙工。

圖15 廚柜實景立面圖
(8)家具立面圖
圖16這是個酒柜立面圖。從立面圖中可以看出這個酒柜由底座、四條實心羅馬柱、雙門結構、內襯隔板、門拱板、頂板幾部分構成。門拱板還要做雕花圖案。

圖16 酒柜CAD軸測圖
(9)門套立面圖
門套是石材加工中很常見的產品,門套加工必須依據門套的立面圖進行。圖19、圖20為門套的CAD圖,
上面標注加工尺寸、門套大樣的形狀、編號、拼接關系。

圖17 門套實景立面圖

圖18門套實景立面圖

圖19 門拱套CAD立面圖

圖20 直門套立面圖
(10)直樓梯立面圖
直樓梯立面圖反映直樓梯立面結構的圖。通過立面圖才知道樓梯產品如何加工的?

圖21 直樓梯立面圖
(11)旋轉樓梯立面圖
旋轉樓梯為樓梯中加工難度很高的產品,通過立面圖反映各部分的關系,生產加工時依據立面圖加工。

圖22旋轉樓梯的實景圖
圖23為旋轉樓梯的立面展開圖。旋轉樓梯的立面展開圖反映了樓梯的總高度,分斷高度、分斷數、分斷方式、水平長度、剖面大樣圖。依據這些參數,再結合旋轉樓梯的平面圖才可以加工出旋轉樓梯。

圖23 旋轉樓梯的立面展開圖
(12)服務臺立面圖
服務臺在賓館、酒店中應用很多。生產加工中要利用服務臺立面圖反映的結構才能準確地加工出合格的服務臺產品。

圖24服務臺立面實景圖
(12)浴缸立面圖
圖25為浴缸立面圖,從立面圖可很清楚地知道該浴缸為雙層結構的圓弧形浴缸,雙層加厚邊加工。

圖25浴缸立面圖
(13)壁龕立面圖
壁龕在家庭住宅項目應用較多,生產加工時必須根據立面圖才可以加工出來。壁龕立面圖有正立面、側立面圖,兩者均有才齊全。

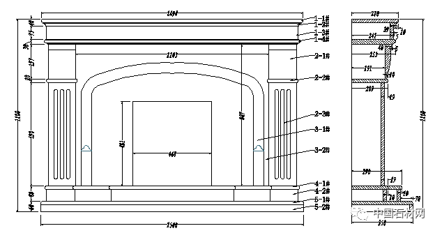
(14)壁爐立面圖
壁爐的立面結構較為復雜,很多石材生產企業員工看不懂的。壁爐立面圖除需要正立面圖外,還要配上側立面圖才能明白產品如何加工。對于特別復雜的壁爐,再配上個立體圖效果讓生產工人看圖就更明白了。圖28、圖29為壁爐的正立面圖與側立面圖。
圖30為壁爐的實景立面圖,通過該圖很容易知道壁爐各部分的關系。

圖28壁爐正立面、圖29壁爐側立面

圖30 壁爐實景圖
(15)水池立面圖
圖31為水池實景立面圖,用兩種石材加工而成。下部腳線和上部面板均有造型,材料為萬壽紅和舊米黃
構成。

圖31水池實景立面較圖
(16)背景墻立面結構
有些背景墻結構很復雜,必須通過立面圖,甚至軸視圖方可以清楚背景墻的結構,加工出背景墻產品。圖32為復雜背景墻,但通過看這個背景墻實物立面圖,很清楚地知道了背景墻的結構,各部分的裝配關系了。

圖32 背景墻實景圖
看懂立面圖比看懂平面圖難度更大,有時需要通過軸視圖(立體圖)才能明白,石材產品的加工必須搞通、弄懂了立面圖方可以加工出立體空間效果好的產品。希望本文對石材生產企業的員工大有幫助,提高生產員工的識圖水平和認知能力。
作者:晏輝
客服熱線:











